x
≡ Menu
Our Company News Gallery Contact Us Global Sales Network

The project of the house with the coordination

The project of the house with the coordination  Stories with a happy ending look like this. In 2015, a client came to our office with a set of pictures that combined a common Scandinavian style. The main goal was to build an inexpensive, compact, functional house. Andrei Ivanovich did not fully understand what he needed, he was sure only that he wanted to build a wooden house out of a bar, he also did not find similar projects on our website, which suited him, that's why he accepted the advice of our manager (Yuli) and ordered an individual project of an apartment house with an agreement. After that, within a month the project was completed, within two months, and in early 2017 it was built and commissioned. Thanks to the project, the client quickly went out on what he needed, before putting into production the house knew its exact size, color, color of the roof and windows.









The cost of the project is small - 8 bel.rub./m2. Prepayment 50%, payment based on actual area. After signing the contract for the production of the house, we will reckon the cost of the project in production. In fact, the project will cost you free. This house, having 120 m2, cost Andrei Ivanovich 960 b. rubles.

(*) at the conclusion of the contract for the production of housekeepers, the discount for the preliminary design is 100%

Let's see together how your standard project at home can look like from ArchiLine.
The project contains all the documentation necessary for approval in the state architecture. Only after agreeing the project can get a developer's passport and put the house into operation, register it in the BTI. During the design our architects will tell you a lot of interesting things about wooden housing construction, help to systematize thoughts, recall all desires, and at the output you will get something that will please you for many years.

The draft sketch visualizes the idea of ​​the future house: internal layouts of the rooms, their size and importance, furniture layout, necessary areas, heights, color solutions, location of the house on the site, according to fire breaks and sides of the world - all this we will consider in more detail, pointing to which sheet is located this or that information.

The title page is necessary for general acquaintance with the type of building for the client, as well as for the builders and matching services, contains a perspective view of the house, information about the organization that carried out the project, and the address where the building will be built.



The first sheet is needed to get acquainted with the content of the general data: what will be the explanatory note and the whole project that include the basic statements, contains the technical and economic indicators of the building, the list of the basic sets of working drawings, the list of the working drawings of the basic set, the list of reference and attached documents, general information on technical solutions, grade of complexity, degree of fire resistance and class of functional fire hazard.



The second sheet is an explanatory note that includes the main architectural characteristics of the house, a spatial planning solution, describes the master plan of the site where the buildings, fire prevention measures, materials to be used for anti-corrosion protection of the house and information on how the collection and disposal of domestic waste.



The third sheet is a schematic of the master plan at a scale indicating the direction of the north, the nearby roads or highways, the location on the site of the projected house and the projected farm building.



On the fourth sheet are perspective types of the projected house from different angles to form a complete picture of your future home.



The next two sheets depict the facades with elevations, as well as the color scheme of the walls, the finish of the roof, the plinth and the pipes.





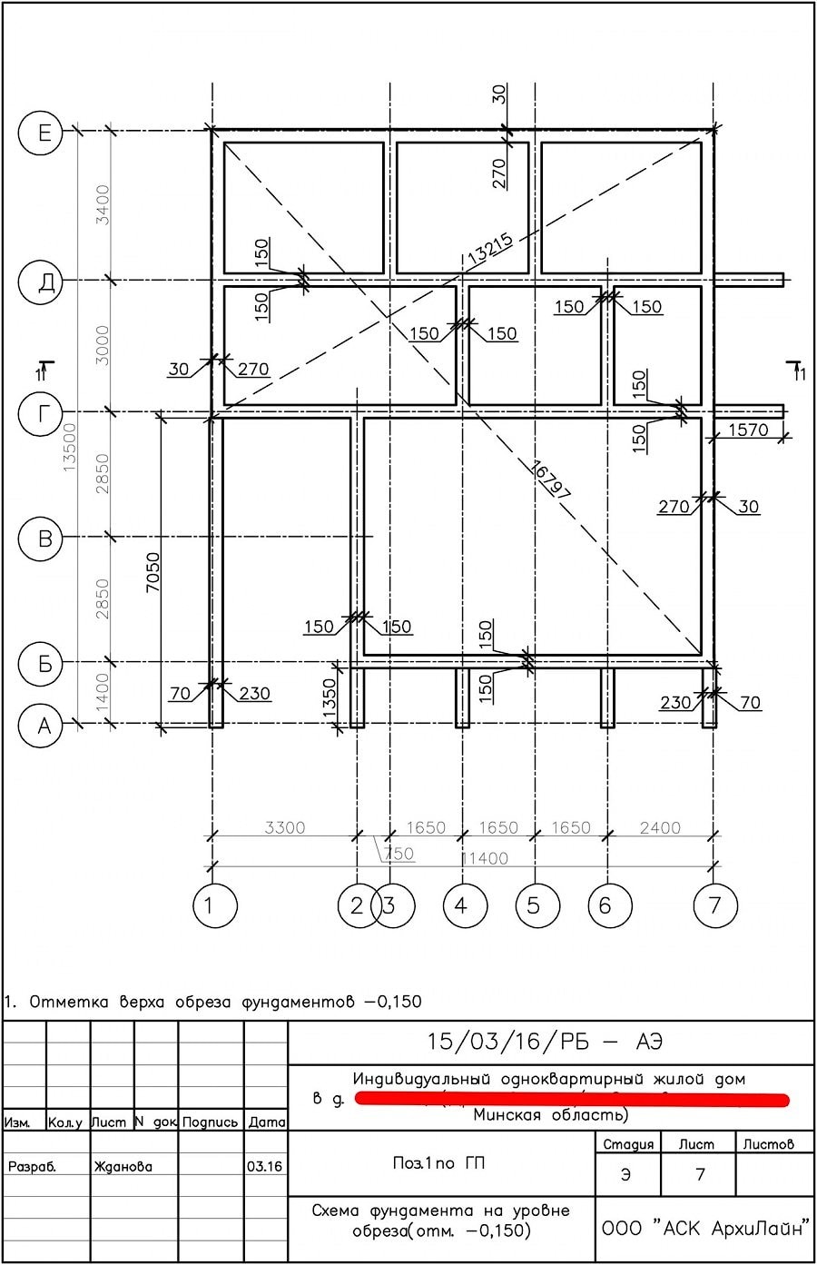
The seventh sheet represents the foundation scheme at the level of the cutoff, i.e. the top of the foundation, on which all the walls will be erected in the future.



The eighth sheet shows the plan of the house with the proposed arrangement of furniture and the explication of the premises with the indication of the areas.



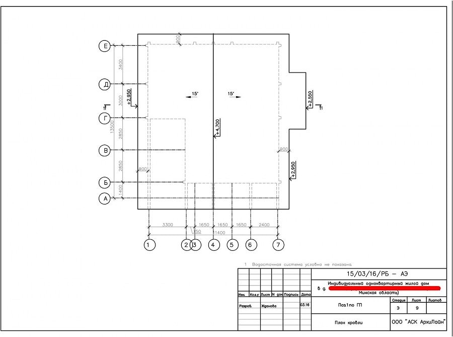
The ninth sheet contains a roof plan indicating the heights, dimensions of the overhangs and the slopes of the slopes.



The tenth sheet is a section showing the heights, the mark of the floor, the dimensions of the door and window openings, the overall dimensions of the building.



In the event that the project has other facilities (grill houses, baths, farm buildings, etc.), additional documentation is being developed.

In this case, a farm building was designed - a gazebo with a grill, made in the same style as the main structure.

On two sheets are displayed the facades of farm building with the indication of heights.





The thirteenth sheet includes a foundation diagram at the cutoff level and a building plan.



The last sheet contains the plan of the roof of the farm building with the indication of the heights, the slopes of the slopes and the section.



As a result, you get a set of all the necessary drawings, thought out and developed to detail, for which you can safely build a house.

Now let's see what kind of house it turned out for Andrei Ivanovich. The material of the walls was a profiled glued beam measuring 200x185 mm, the roofing - ceramic tiles.

The project of the house - the price and the coordination





If you want to buy the project of the house with the coordination , you can:



More from section Wooden house designs

    Another wonderful dream house from the company ArchiLine in the treasury to the desires to build a wooden house from a bar! A typical project of a house made of timber - 80-90 square meters Cozy, comfortable, great option for a big family. Lovers of ...
      Design of a tiny wooden house "Ikihirsi" made of glulam - total area 120 square meters Our "Ikihirsi" is a dream house with original shape and layout. This is a truly rare project of a house not only with good layout, but with the impressive size of ...
      • Category: two-storey houses
      Build a house from glued timber "Till" with your own hands! Purchase the kit for self-assembly. Reach your goal, save your money, build a wooden house from glued beams at the price of a small car! Buy ready-made set of wooden house from glued timber ...
      • Category: single-storey houses
      Wooden house of glued timber "Ukraine" Assemble the house of your dreams with your own hands - the "Ukraine" house set for self-assembly. Reach your goal, save your money, build a wooden house from glued beams at the price of a small car! House ...
      • Category: two-storey houses
      Prefabricated timber home : design of a wooden cottage "Rovaniemi" - total area 177 square meters It’s a very nice 2-storeyed wooden house. Ground floor includes very spacious living room, kitchen and dining room, bedroom, bathroom, technical room ...
      • Category: garages
      Spacious workshop with unlimited possibilities of use, environmentally friendly and safe. The garden and construction season is over and there is a great opportunity to thoughtfully do something for the soul. However, in the summer it is also ...
      • Category: two-storey houses
      What can be better than your own timber house? The smell inside it and it's style will impress all your neighbours! The house "Aria" is breathing. Timber is a kind of material that will always fill your house with a fresh air and a pleasant smell. ...
      • Category: single-storey houses
      This house will be comfortable for living for a family of five to six people. The design feature of the project is that the house is variable, it can be easily adapted to the wishes of the customer in terms of area and functionality. The main thing ...
      • Category: single-storey houses
      This wooden house "Achille" was designed as a traditional French country house, it is an ergonomic and very spacious one-storey house with a large summer terrace. The height of the roof enlarges the space inside the house. The layout of the house ...
        ooden villa particularly for countries with hot climate. Original project for private houses and villas construction in such countries as Qatar, United Arabic Emirates, Bahrein, Kuweit, Saudi Arabia and other where sun shines all year round. The ...
          Phytoncides - although this word was not known before, but our ancestors knew the benefits of wooden houses and the walls of wooden coniferous houses. Today, people are more accustomed to relying on chemicals to fight bacteria, viruses (coronavirus ...
            "Archiline: Your Dream Home from Belarus" - export project of a wooden house with the area of 90m2 Nowadays, as more and more people strive for naturalness and eco-friendliness, wooden houses are becoming more and more popular. They are not only ...

            © 2026
            ArchiLine Wooden Houses
            114-49, Necrasov str., Minsk, Republic of Belarus, 220049

            The site is powered by Nestorclub.com

            google.com, pub-6447061049723989, DIRECT, f08c47fec0942fa0